Bought with Jeffrey M Wheatley-Heckman
$587,200
$598,900
2.0%For more information regarding the value of a property, please contact us for a free consultation.
W149N11987 Red Holly DRIVE Germantown, WI 53022
4 Beds
2.5 Baths
2,280 SqFt
Key Details
Sold Price $587,200
Property Type Single Family Home
Sub Type Farmhouse/National Folk
Listing Status Sold
Purchase Type For Sale
Square Footage 2,280 sqft
Price per Sqft $257
Municipality GERMANTOWN
Subdivision Wrenwood North
MLS Listing ID 1908879
Sold Date 10/31/25
Style Farmhouse/National Folk
Bedrooms 4
Full Baths 2
Half Baths 1
HOA Fees $25/ann
Year Built 2025
Tax Year 2025
Lot Size 0.420 Acres
Acres 0.42
Property Sub-Type Farmhouse/National Folk
Property Description
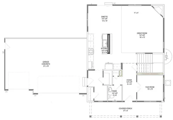
Driveway Included! The Mulberry-located in the heart of Germantown. This farmhouse inspired 2-story home features upgrades throughout. Kitchen features soft close cabinets, quartz countertops, exterior vented range hood & walk-in pantry. Great room features gas fireplace with stone detail. Flex room off front foyer has French doors, making it a great office or study. 2nd floor features primary suite, plus 3 secondary bedrooms, hall bathroom & laundry room. Primary suite boasts a cathedral ceiling & has walk-in closet, tiled shower with bench & double sinks. Lower level includes full bath rough-in. Home is currently under construction, estimated completion July.
Location
State WI
County Washington
Zoning Residential
Rooms
Basement Full, Poured Concrete, Radon Mitigation System, Sump Pump
Kitchen Kitchen Island Main
Interior
Interior Features Cable/Satellite Available, High Speed Internet, Pantry, Simulated Wood Floors, Walk-in closet(s)
Heating Natural Gas
Cooling Central Air, Forced Air, Whole House Fan
Equipment Dishwasher, Disposal, Microwave, Other
Exterior
Exterior Feature Aluminum, Fiber Cement, Aluminum Trim, Stone, Brick/Stone
Parking Features Opener Included, Attached, 3 Car
Garage Spaces 3.0
Building
Sewer Municipal Sewer, Municipal Water
Architectural Style Farmhouse/National Folk
New Construction Y
Schools
Middle Schools Kennedy
High Schools Germantown
School District Germantown
Read Less
Want to know what your home might be worth? Contact us for a FREE valuation!

Our team is ready to help you sell your home for the highest possible price ASAP
Copyright 2025 WIREX - All Rights Reserved






