
7647 Stones Throw Drive Madison, WI 53719
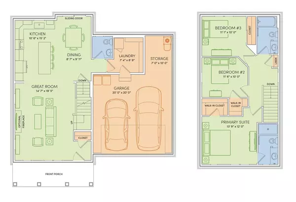
3 Beds
2.5 Baths
1,649 SqFt
UPDATED:
Key Details
Property Type Single Family Home
Sub Type Prairie/Craftsman
Listing Status Pending
Purchase Type For Sale
Square Footage 1,649 sqft
Price per Sqft $291
Municipality MADISON
Subdivision Midpoint Meadows
MLS Listing ID 2007125
Style Prairie/Craftsman
Bedrooms 3
Full Baths 2
Half Baths 1
HOA Fees $311/ann
Year Built 2025
Tax Year 2024
Lot Size 5,227 Sqft
Acres 0.12
Property Sub-Type Prairie/Craftsman
Property Description
Location
State WI
County Dane
Zoning RESR2Z
Rooms
Basement Full, Sump Pump, Radon Mitigation System, Poured Concrete
Kitchen Breakfast Bar, Kitchen Island Main
Interior
Interior Features Wood or Sim.Wood Floors, Walk-in closet(s), Great Room, Water Softener, Cable/Satellite Available, Some Smart Home Features
Heating Natural Gas
Cooling Forced Air, Central Air, Air Cleaner
Equipment Range/Oven, Refrigerator, Dishwasher, Microwave, Disposal, Washer, Dryer
Exterior
Exterior Feature Vinyl
Parking Features 2 Car, Attached, Opener Included, Garage Stall Over 26 Feet Deep
Garage Spaces 2.0
Building
Lot Description Sidewalks
Dwelling Type 2 Story
Sewer Municipal Water, Municipal Sewer
Architectural Style Prairie/Craftsman
New Construction Y
Schools
Elementary Schools Olson
Middle Schools Toki
High Schools Memorial
School District Madison



