
93 Savannah PARKWAY Deerfield, WI 53531
4 Beds
2.5 Baths
2,069 SqFt
UPDATED:
Key Details
Property Type Single Family Home
Sub Type Contemporary
Listing Status Contingent
Purchase Type For Sale
Square Footage 2,069 sqft
Price per Sqft $263
Municipality DEERFIELD
Subdivision Savannah Parkway
MLS Listing ID 1930758
Style Contemporary
Bedrooms 4
Full Baths 2
Half Baths 1
Year Built 2025
Annual Tax Amount $2
Tax Year 2024
Lot Size 0.310 Acres
Acres 0.31
Property Sub-Type Contemporary
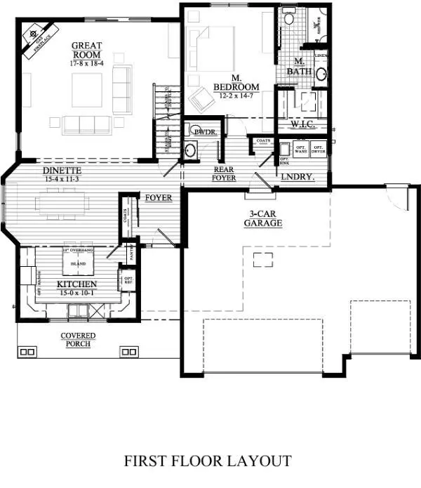
Property Description
Location
State WI
County Dane
Zoning RES
Rooms
Basement Full, Full Size Windows, Poured Concrete, Sump Pump
Kitchen Kitchen Island Main
Interior
Interior Features Pantry, Simulated Wood Floors, Cathedral/vaulted ceiling, Walk-in closet(s)
Heating Natural Gas
Cooling Central Air, Forced Air
Inclusions 1 year builder, 10-year structural and 30-year dry basement warranties. Standard concrete drive, walk and standard seeded yard. Stainless-Steel Microwave, Dishwasher and Garbage Disposal. Exclusive double wall system. Focus on Energy & Green Built Certification. Passive Radon System
Equipment Dishwasher, Disposal, Microwave
Exterior
Exterior Feature Aluminum Trim, Stone, Brick/Stone, Vinyl, Wood
Parking Features Opener Included, Attached, 3 Car
Garage Spaces 3.0
Building
Lot Description Sidewalks
Dwelling Type 2 Story
Sewer Municipal Sewer, Municipal Water
Architectural Style Contemporary
New Construction Y
Schools
Elementary Schools Deerfield
Middle Schools Deerfield
High Schools Deerfield
School District Deerfield Community






