REQUEST A TOUR If you would like to see this home without being there in person, select the "Virtual Tour" option and your agent will contact you to discuss available opportunities.
In-PersonVirtual Tour

Listed by Spenser Nickelatti • eXp Realty LLC
$ 395,000
Est. payment /mo
Active
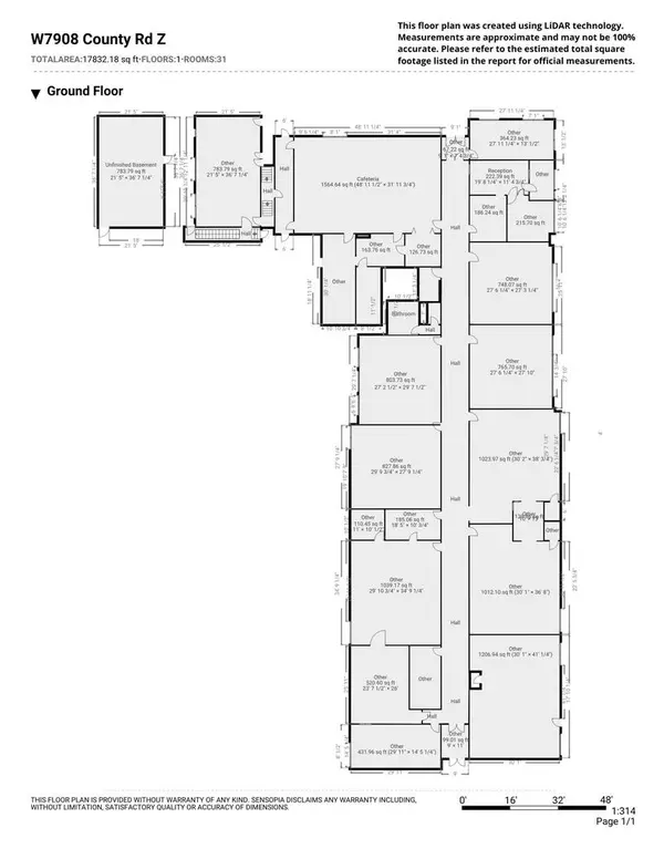
W7908 County Road Z Onalaska, WI 54650
20,000 SqFt
UPDATED:
Key Details
Property Type Commercial
Listing Status Active
Purchase Type For Sale
Square Footage 20,000 sqft
Price per Sqft $19
Municipality ONALASKA
MLS Listing ID 1902657
Year Built 1967
Tax Year 2023
Lot Size 5.100 Acres
Acres 5.1
Property Description
Incredible opportunity to own this valuable 5+ acres of real tests on the Prairie! Formerly a school, this 20,000 sq ft building could still be used as a school, corporate HQ, government office, etc...tons of options! This property also provides a great opportunity to tear down and develop. Any of the above listed options would be contingent on government approvals. 5+ acres right off os County Road Z offers great visibility. Told of parking space and green space also!
Location
State WI
County La Crosse
Zoning Commercial
Rooms
Basement Partial
Interior
Heating Natural Gas
Cooling Central Air, Forced Air
Inclusions None
Exterior
Exterior Feature Brick, Brick/Stone, Other
Garage Spaces 40.0
Parking On Site 40
Roof Type Composition/Fiberglass
Building
Dwelling Type Free Standing
Story 1
Sewer Well, Private Septic System
New Construction N
Copyright 2025 WIREX - All Rights Reserved






